¿Tiene preguntas?
-
Ajuste garantizado
Siempre la pieza correcta
-
Expertos internos
Conocemos nuestros productos
-
Valor añadido
Montaje, Equilibrio
-
Entrega en todo el mundo
Envio gratis en todas las ordenes
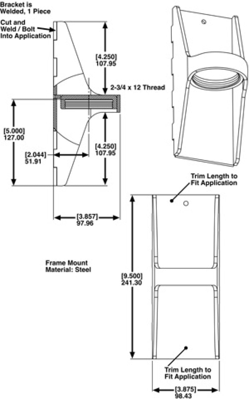
CONJUNTO DE ADAPTADOR Y MONTAJE EXTREMO SPC Performance
2
vendido en el último
8
horas
$152.33
Este soporte universal proporciona una opción versátil de soldar o atornillar para montar su JounceShock en...
Agregando el producto a tu carrito de compra
Los clientes están viendo este producto.
Carta del tamaño
×
COMPRE AHORA, PAGUE DESPUÉS. A partir del 0% APR